Optimální zateplení obálky domu, přístavba patra a projekční práce - financováno NZÚ
135000 Kč
02.06.25
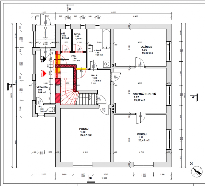
Snížení energetické náročnosti rodinného domu o 45% díky správně navrženému typu zateplení obálky domu, novým oknům a dveřím. Projekt splnil podmínky čerpání dotace NZÚ a zákazník dostal souhrnnou dotaci na rekonstrukci 1 250 000Kč.
Součásti zakázky je i stavební dohled nad přístavbou nového patra. Bylo potřeba vytvořit i novou projektovou dokumentaci.
Na webu právě probíhají technické práce. Část funkcí je dočasně mimo provoz.
Vyberte kategorii služeb
Vyberte kategorii a podrobně vyplňte objednávkový formulář. Platforma vám zobrazí až 6 specialistů. Vyberte jednoho poskytovatele a platforma vám vzájemně zpřístupní kontaktní údaje